物件詳細
地下鉄空港線「大濠公園」駅 徒歩4分/大濠公園徒歩圏内の分譲賃貸マンション/ペット飼育相談可バス・トイレ別、洗面所独立、温水洗浄便座、浴室乾燥機、追い焚き機能など、水回りの設備も充実
- 賃料/管理費等
- 26.5万円 / -
- 敷金/礼金
- 0.0ヶ月 / 2.0ヶ月
- 保証金/敷引/償却金
- /
- 間取り(面積)
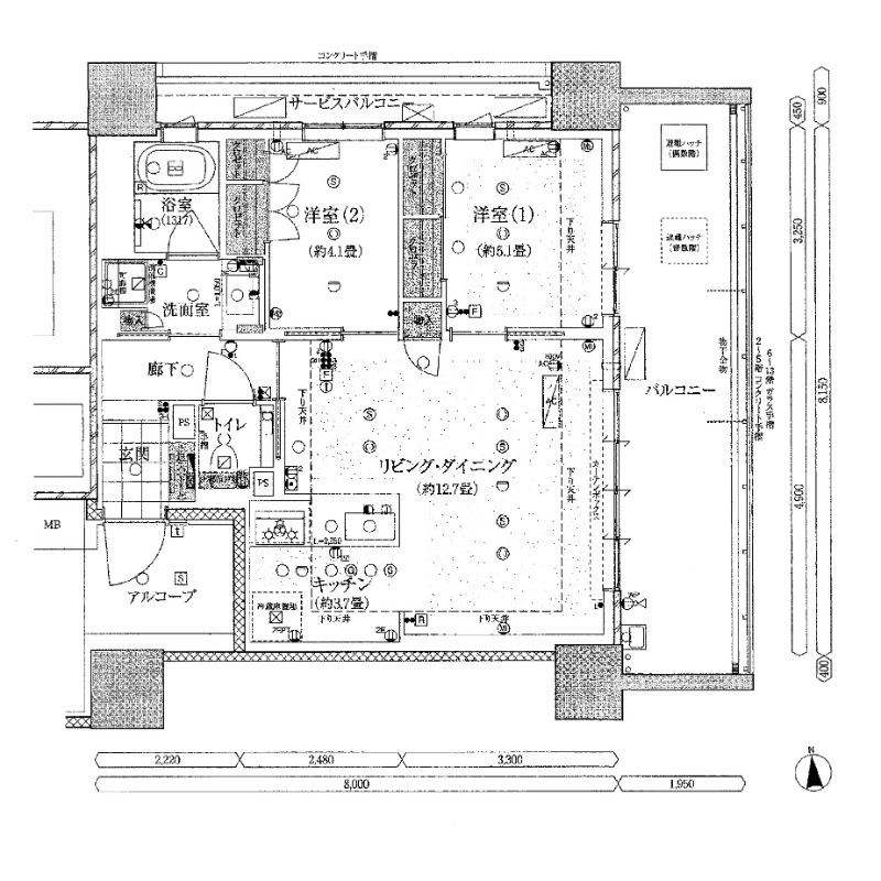
- 2 LDK (60.4㎡)
- 種別 / 築年月
- マンション / 2023年 12月
- 所在地
- 荒戸2丁目 3-9
- 最寄り駅
- 福岡地下鉄空港線 大濠公園
- 徒歩
- 4分
| 物件所在地 | 福岡県 福岡市中央区 荒戸2丁目 3-9 MAPを見る |
|---|---|
| 交通機関 |
福岡地下鉄空港線 大濠公園 4分 |
| 間取り詳細 | LD(12.70帖) K(3.70帖) 洋室(5.10帖) 洋室(4.10帖) |
| 建築構造 | 鉄筋コン |
| 所在階/ 階数 |
4階 / 23階 |
| 窓の向き | 東 |
| 現況 | 空室 |
| 入居時期 | 相談 |
| 入居条件 | ペット:相談 |
| 周辺施設 | 小学校(福岡市立当仁小学校)(572m) 中学校(福岡市立当仁中学校)(1581m) コンビニ(コンビニ)(116m) スーパー(スーパー)(410m) |
| 設備 | システムキッチン / 追焚機能浴室 / 角住戸 / 温水洗浄便座 / 浴室乾燥機 / 洗面所独立 / 食器洗浄乾燥機 / ディスポーザー / クロゼット / シューズボックス / バストイレ別 / シャワー / 3口以上コンロ / エアコン / 室内洗濯機置場 / オートロック / フローリング / 光ファイバー / TVインターホン / インターホン |
| 部屋外設備 | 分譲賃貸 / エレベーター / 制震構造 |
| 駐車場 | 空無 |
| 備考 | 住 居:住宅総合保険加入/実費精算/定期借家契約(2年)/ペット飼育相談可(小型犬1匹まで):敷金1ヶ月UP・ペット消毒代有/1年未満の解約時、違約金家賃の1ヶ月分/退去時清掃代:73,000円(税別)/ZEH物件につき注意事項あり その他費用は管理規約に準ずる。 駐車場:管理組合要相談 |
CONTACT
この物件に関するお問い合わせは
こちらから
ご希望の条件に合う物件に
空室が出た場合、
弊社からご連絡いたします。